Rif. 00603 - Casa Semi Indipendente in vendita a Cisano sul Neva
Descrizione
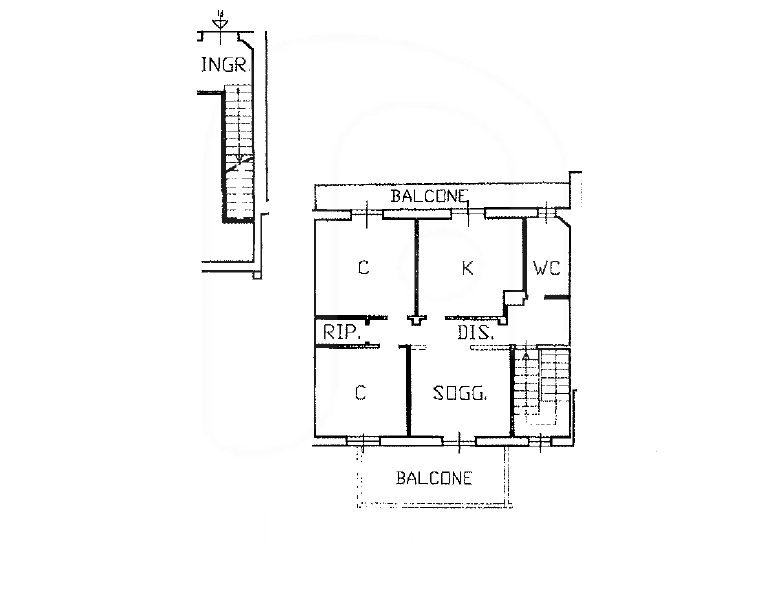
L’Agenzia Immobiliare Casasy di Albenga propone in vendita a Cisano sul Neva, a circa 7 km dal centro città, CASA SEMI INDIPENDENTE di 113 mq commerciali con annesso Magazzino situato al piano strada con accesso diretto dall’interno dell’abitazione. La casa si presenta in buono stato conservativo ed è composta da: ingresso in disimpegno, ampio soggiorno, cucina abitabile, due camere da letto matrimoniali, bagno finestrato, ripostiglio, un balcone e una terrazza vivibile, ottimamente esposta con vista aperta nel verde.
Al piano terra il magazzino di 81 mq con accesso al cortile privato.
L’ Impianto elettrico è stato recentemente rifatto, è presente l’impianto di condizionamento aria calda/ fredda, boiler elettrico ed il bagno è stato ristrutturato , gli infissi in alluminio con vetrocamera.
Ideale sia come prima abitazione che come creazione di struttura ricettiva per stranieri.
Cisano sul Neva è infatti meta ambita per scalatori e per chi ama praticare escursionismo grazie ai suoi sentieri che portano a paesini dell’entroterra ligure davvero caratteristici.
APE C IPE 97,05 kWh/mq anno
Se tra queste proposte non hai trovato ciò che desideri, contattaci! Insieme troveremo la soluzione ideale per te!
Agenzia Immobiliare Casasy Albenga – www.casasyalbenga.com Tel. 0182.55.56.27 WhatsApp 3421000268



























