Rif. 00602 - Ortovero, Frazione Pogli, in vendita Casa Indipendente con terreno, ottima opportunità immobiliare!
Descrizione
L’Agenzia Immobiliare Casasy propone in vendita, in una posizione dominante e molto ben esposta al sole un‘opportunità immobiliare molto interessante!
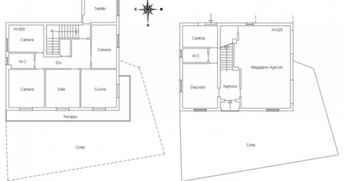
La Casa è indipendente, si sviluppa su una superficie complessiva di 215 mq ed è così suddivisa, un appartamento al primo piano di mq 100 calpestabili, composto da: ampio ingresso, sala, cucina abitabile, quattro camere, bagno, ripostiglio e balcone perimetrale.
Una grande autorimessa al piano terra con annessi due locali deposito e un servizio igienico.
Di pertinenza un ampio giardino e circa 1000 mq di terreno.
Le potenzialità di questa proprietà sono molteplici:
- La possibilità di realizzare più unità abitative
- Realizzare una struttura ricettiva
- Realizzare una piscina grazie all’ampio terreno in piano
Un’abitazione ideale per un nucleo familiare ampio con possibilità di utilizzare il piano terra ed il terreno per la propria attività.
Lo stato generale è buono permettendo di abitare da subito l’appartamento, il bagno e la cucina sono stati rinnovati di recente.
Contattaci per maggiori informazioni o per prenotare una visita!
Classe F Ep gl,ner 160,86 KWh/m2 anno
Se tra queste proposte non hai trovato ciò che desideri, contattaci!
Insieme troveremo la soluzione ideale per te!
Agenzia Immobiliare Casasy Albenga
www.casasyalbenga.com
Tel. 0182.555627 – Whatsapp 342.1000268

































